Architectural

Architecture Services

Best Architecture Designer in Lahore

Looking for an architect in Lahore to turn your ideas into reality? At Hamza Constructors, we provide professional architecture services for both residential and commercial projects.

Our skilled architects focus on smart planning, modern designs, and practical solutions that make every space both beautiful and functional. From concept to execution, we work closely with you to ensure your vision is brought to life with care and precision.

With a strong reputation and years of experience, Hamza Constructors stands among the most trusted architectural firms in Lahore. Whether you want a complete house design or a commercial project layout, our team is here to deliver results you can rely on.

Our Services

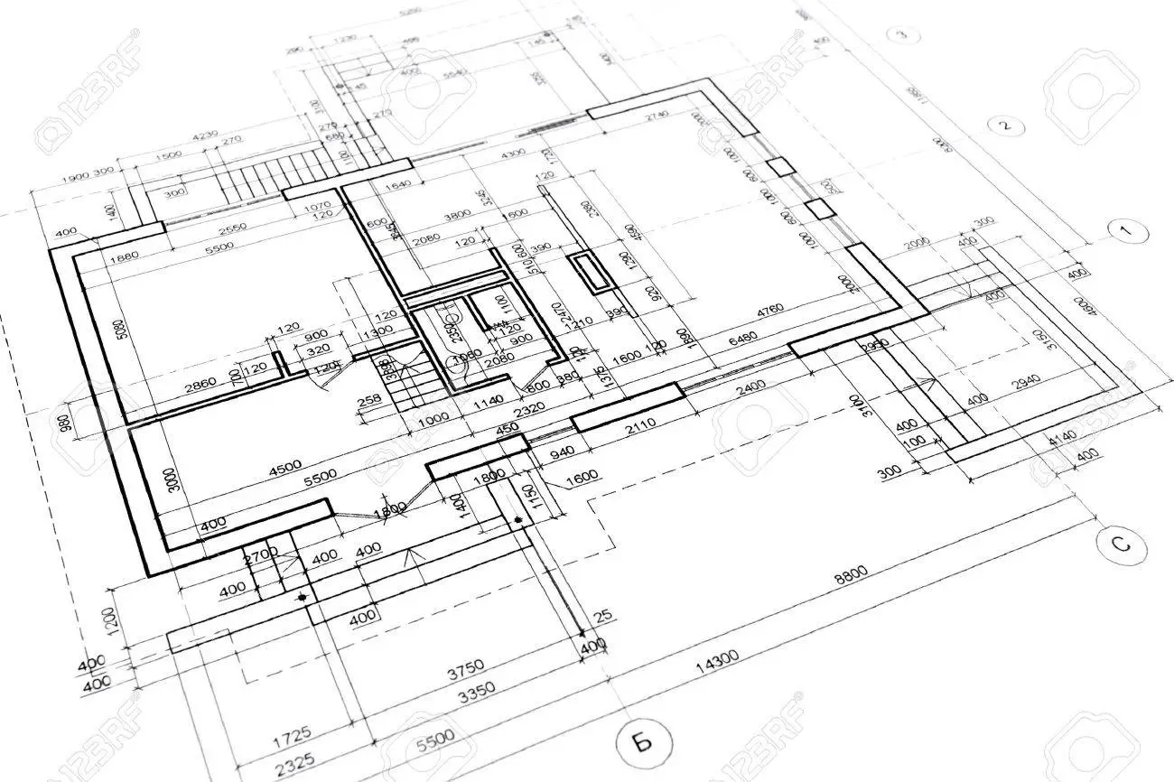
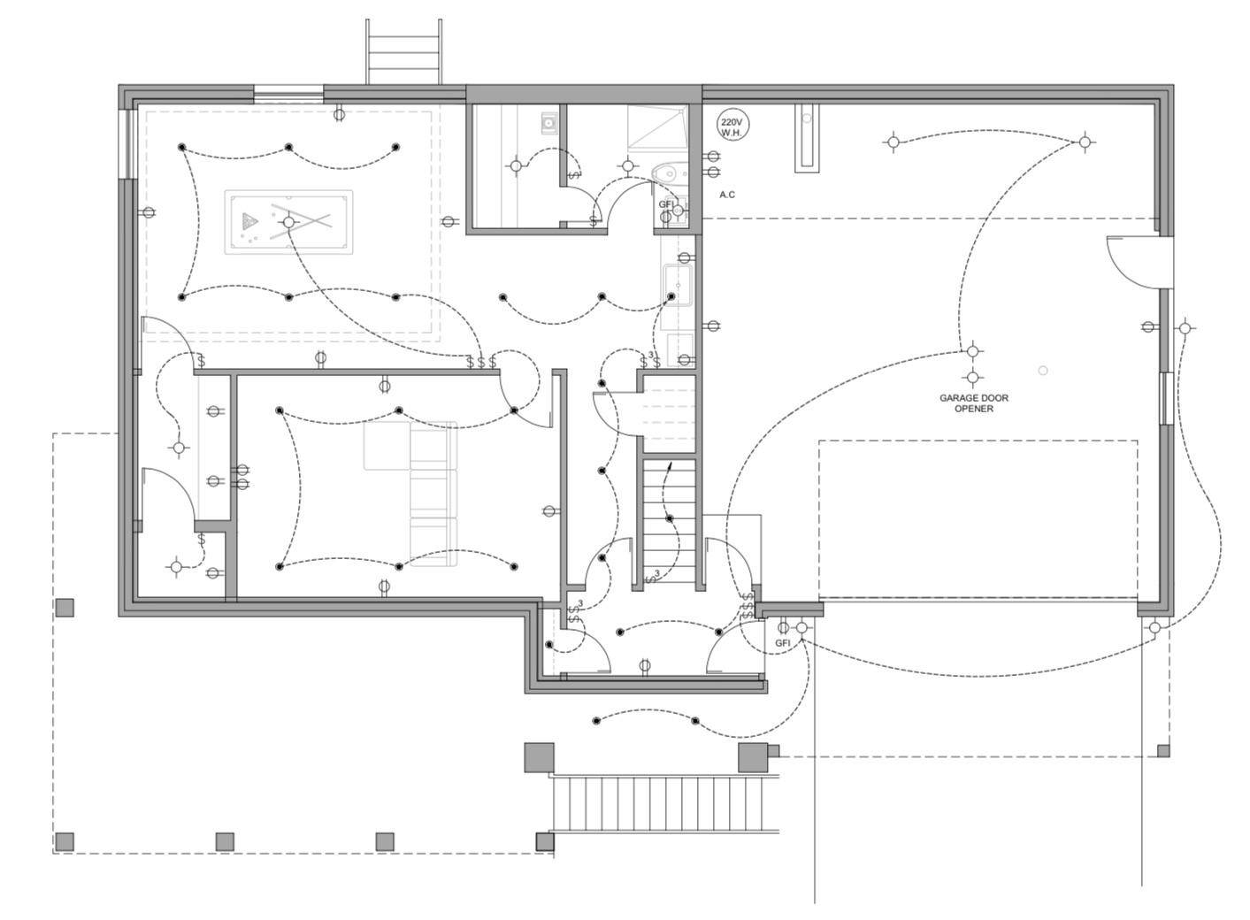
Types of Architecture Services

Architectural drawings

Structural drawings

Electrical plans

Plumbing drawings

3D visualizations

Commercial & Residential

Why We Are Best?

At Hamza Constructors, we believe great architecture starts with listening. We focus on your ideas and dreams, making sure every design reflects your lifestyle and vision.

Our approach combines creativity with practicality, ensuring each project is stylish, functional, and long-lasting. We keep you involved at every stage so the final result truly feels like yours.

With two offices in Lahore, including our main office in Garden Town, we make it easy for clients to access professional residential, commercial, and interior design services.

Architects Design

Our Working Process

To deliver the best architectural design services, we follow a clear step-by-step process. We’ve simplified it into 6 main phases, and each phase carries its own importance, with several tasks completed at every stage.

Project Examination

We begin by carefully understanding your requirements, ideas, and goals. Our architects then create the best possible design solutions that meet your needs.

Site Study

A complete site study is carried out, including site visits, measurements, and location analysis, to ensure practical and accurate planning for your project.

Design & Development

Our team prepares detailed 2D layouts and drawings, covering everything from floor plans to design elements, ensuring your vision is properly shaped on paper.

Structural Planning

If any structural modifications are required, our experts address them at this stage, making sure your building design remains safe and reliable.

Budget & Timeline

We finalize the budget and allocate resources according to your requirements. A realistic project timeline is also set to ensure smooth execution.

Review & Execution

Finally, the entire plan is reviewed with the client before execution. Our team then begins construction and design work with strict supervision.

100 +
Completed Projects
10 +
In Progress
70 +
Employees
60 +
Clients
OUR FAQS

Frequently Asked Questions

What services do you provide?
We offer interior design, exterior design, architecture planning, project management, renovation, and landscaping services.
Do you design both homes and offices?
Yes, we provide complete design and construction solutions for residential, commercial, and office projects.
How do I start working with you?
Simply contact us for a free consultation. We’ll discuss your ideas, needs, and budget before starting.
Do you provide custom house maps and layouts?
Yes, we create customized house plans and layouts based on your requirements and lifestyle.
How much does an interior design project cost?
The cost depends on the size of the space, materials, and design requirements. We offer flexible solutions for every budget.
How long will my project take?
Timelines vary with project size and complexity. A single room may take weeks, while full projects may take months.
Can you handle renovation of old houses or offices?
Yes, we specialize in renovation and remodeling, transforming outdated spaces into modern and functional ones.
Do you offer landscaping services as well?
Yes, we design and develop beautiful outdoor areas, including gardens, sitting spaces, and landscapes.
Will I be involved in the design process?
Of course! We involve clients at every step – from planning to finishing – so the final design matches your vision.
Do you only work in Lahore?
Currently, we provide services all over Lahore, including DHA, Bahria Town, Gulberg, Valencia, and surrounding areas.